产品介绍:
该产品可对膏状、颗粒状、粉状、浆状物料间接加热或冷却,可完成干燥、冷却、加热、灭菌、反应、低温燃烧等单元操作。设备中特殊的楔型搅拌传热浆叶具有较高的传热效率和传热面自清洁功能。
适应物料:
桨叶干燥机已成功地用于食品、化工、石化、染料、工业污泥等领域。设备传热、冷却、搅拌的特性使之可以完成以下单元操作:燃烧(低温)、冷却、干燥(溶剂回收)加热(融化)、反应和灭菌。搅拌浆叶同时又是传热面,使单位有效容积内传热面积增大,缩短了处理时间。楔型浆叶传热面又具有自清洁功能。压缩--膨胀搅拌功能使物料混和均匀。物料沿轴向成'活塞流'运动,在轴向区间内,物料的温度、湿度、混合度梯度很小。用导热油做热介质浆叶干燥机可完成低温燃烧工作。如:二水硫酸钙(Ca2SO4·2H2O) 燃烧转化为半水硫酸钙(Ca2SO4·1/22H2O)。碳酸氢钠(NaHCO3)经煅烧转化为纯碱(Na2HCO3)等。通入冷却介质,如水、冷却盐水等即可用来冷却。如:使用于纯碱行业的浆叶式凉碱机,取代老式的空气冷却凉碱机,节省了能源及尾气处理设备,降低了操作费用。干燥,设备主要的功能,不使用热空气,使溶剂回收、能源消耗、环境控制处于易处理的理想状态。对需回收溶剂、易燃易氧化热敏性物料尤为适应。已广泛用于精细化工、石化、染料行业。轴向区间内,温度、湿度、混合度的均匀性,使得设备可用来加热或融化,或进行一些固体物料反应。在复合肥及变性淀粉行业均已成功使用。浆叶干燥机可用来对食物和面粉进行灭菌处理。单位有效容积内大的加热面积,很快就将物料加热到灭菌温度,避免了长时间加热而改变物料品质。
设备优点:
结构紧凑:干燥机主要的传热部件是铲形的桨叶,这些桨叶都密集的、按照规定的间隔交叉排列在固定的旋转轴上,因此单位容积的传热比较高。基于这一原因,这种设备的结构非常紧凑、占地面积小。
传热效率高:由于原材料很好地连续混合搅拌,由于相对旋转的铲形的桨叶和倾斜的桨叶表面以及机体的加热、冷却,保证了所有与产品接触的表面能够均匀地传递热能。
自洁性能:由于桨叶的运动是相对旋转,它们对附近的内表面起到连续的自洁作用。相互粘结的、堆积在桨叶上的产品都能够被清除下来,重新进入生产过程。
控制简单:干燥过程和停留时间都可以简单地检查、控制和调整。它们都可以根据被干燥产品的物理性能单独进行设定和调整,对轴或者桨叶的数量、转速、传热体的温度和干燥时间进行设定和调整。
产生的粉尘和气味较小:由于干燥过程中使用的气体流量很小,因此能够产生的粉尘和气味也很小。因此,与其配套使用的吸尘器或者除味器也很小或者根本无需使用。
适合于湿度很大产品的干燥:由于使用了桨叶式的干燥元件和连续的混合搅拌,能够对黏度很大的、高湿度的材料进行干燥。它的结构设计避免了产品在死角处的积留和因产品积留而带来的过热或者腐败变质。
几乎没有磨损和材料的损耗:桨叶的转速很低,每分钟只有10~40转,这就有效地避免了磨蚀和由磨蚀带来的机床设备快速的磨损。另外,也将金属材料的破裂风险降低到了较小程度。
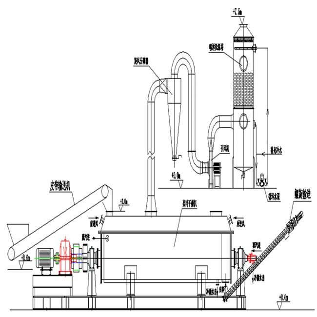
工作原理:
空心轴上密集排列着楔型中空浆叶,热介质经空心轴流经浆叶。单位有效容积内传热面积很大,热介质温度从-40℃到320℃,可以是水蒸汽,也可以是液体型:如热水、导热油等。间接传导加热,没有携带空气带走热量,热量均用来加热物料。热量损失仅为通过器体保温层向环境的散热。楔型浆叶传热面具有自清洁功能。物料颗粒与楔型面的相对运动产生洗刷作用,能够洗刷掉楔型面上附着物料,使运转中一直保持着清洁的传热面。浆叶干燥机的壳体为Ω型,壳体内一般安排二到四根空心搅拌轴。壳体有密封端盖与上盖,防止物料粉尘外泄而充分发挥作用。
传热介质通过旋转接头,流经壳体夹套及空心搅拌轴,空心搅拌轴依据热介质的类型而具有不同的内部结构,以保证传热效果。


性能特点:
1、物料滞留时间可调,可处理高含水物料,也能获得极低含水物料;
2、典型传导干燥方式,节能,传导系数大,热效率高;
3、因所需热量全部由空心叶片和夹套供给,为降低排气湿度,补充少量热空气即可,粉尘夹带低,尾气易处理,不需除尘等辅助设备。
4、桨叶具有自洁能力。桨叶相向旋转,叶片的两个斜面反复搅拌、压缩、松弛并推进物料,使页面具有独特的自洁能力,加热面不断获得更新,也使桨叶干燥机的传热系数高于其他任何传导干燥方式。

技术规格:
| 项目 型号 | JYG3 | JYG9 | JYG13 | JYG18 | JYG29 | JYG41 | JYG52 | JYG68 | JYG81 | JYG95 | JYG110 |
| 传热面积(m2) | 3 | 9 | 13 | 18 | 29 | 41 | 52 | 68 | 81 | 95 | 110 |
| 有效容积(m3) | 0.06 | 0.32 | 0.59 | 1.09 | 1.85 | 2.8 | 3.96 | 5.21 | 6.43 | 8.07 | 9.46 |
| 转速范围(rmp) | 15-30 | 10-25 | 10-25 | 10-20 | 10-20 | 10-20 | 10-20 | 10-20 | 5-15 | 5-15 | 5-10 |
| 功率(kw) | 2.2 | 4 | 5.5 | 7.5 | 11 | 15 | 30 | 45 | 55 | 75 | 95 |
| 器体宽A(mm) | 306 | 584 | 762 | 940 | 1118 | 1296 | 1476 | 1652 | 1828 | 2032 | 2210 |
| 总宽B(mm) | 736 | 841 | 1066 | 1320 | 1474 | 1676 | 1854 | 2134 | 1186 | 2438 | 2668 |
| 器体宽C(mm) | 1956 | 2820 | 3048 | 3328 | 4114 | 4724 | 5258 | 5842 | 6020 | 6124 | 6122 |
| 总长D(mm) | 2972 | 4876 | 5486 | 5918 | 6808 | 7570 | 8306 | 9296 | 9678 | 9704 | 9880 |
| 进出料距E(mm) | 1752 | 2540 | 2768 | 3048 | 3810 | 4420 | 4954 | 5384 | 5562 | 5664 | 5664 |
| 中心高F(mm) | 380 | 380 | 534 | 610 | 762 | 915 | 1066 | 1220 | 1220 | 1220 | 1220 |
| 总高H(mm) | 762 | 838 | 1092 | 1270 | 1524 | 1778 | 2032 | 2362 | 2464 | 2566 | 2668 |
| 进汽口N(寸) | 3/4 | 3/4 | 1 | 1 | 1 | 1 | 11/2 | 11/2 | 11/2 | 11/2 | 2 |
| 出水口O(寸) | 3/4 | 3/4 | 1 | 1 | 1 | 1 | 11/2 | 11/2 | 11/2 | 11/2 | 2 |
13912340688、13815069288
yz@yzdryer.com




